Premium Bungalow in gefragter Lage – 180m² auf 1290m² Grundstück in Hetzerath
Eckdaten
- Art Bungalow
- Lage 54523 Hetzerath
- Kaufpreis 1.050.000,00 €
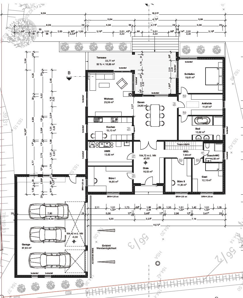
- Wohnfläche ca. 180 m²
- Grundstück ca. 1.290 m²
- Zimmer 10
- Gartenfläche ca. 1.100 m²
- Baujahr 2025
- Nutzfläche ca. 220 m²
- Etagenzahl 1
- Alt-/Neubau Neubau
- Gäste-WC ja
- Fahrzeit nächste Autobahnauffahrt 5 min
- Ausstattung des Bades Dusche Fenster Badewanne
- Zustand Nach Vereinbarung
- Immobilien-ID 1003
Immobilie
Die angebotene Immobilie umfasst das Baugrundstück für Ein- / Zweifamilienhäuser mit einer Grundstücksfläche von 1287 m² in sehr gefragter Lage, sowie der 180m² Premiumbungalow (KfW40) im Neubau.
Der Preis der Baugrundes – vollerschlossen liegt bei 450.000€.
Der Kaufpreis bezieht sich auf das gesamte Projekt, also Baugrund und Premium Bungalow, – ohne Baunebenkosten. Die Planungen sind bereits abgeschlossen und alle Bauunterlagen liegen bereits vor.
Höhenvermessung und präzise Kalkulation können vorgelegt werden. Das Baugrundgutachten, sowie die Fundamentplatte ist inklusive und Bestandteil des Hauspreises.
Das Haus kann innerhalb von wenigen Monaten schlüsselfertig bezogen werden.
Eingeplant ist weiterhin eine Garage für 3 KFZ.
Die Umgebung ist ruhig und familienfreundlich, ideal für den Bau eines Eigenheims. Das Grundstück bietet ausreichend Platz für individuelle Gestaltungsmöglichkeiten und den Bau eines komfortablen Wohnhauses.
Die Räumlichkeiten des zukünftigen Ein- oder Zweifamilienhauses können je nach Planung und Bedarf vielfältig gestaltet werden. Von geräumigen Wohnzimmern und Schlafzimmern bis hin zu modernen Badezimmern und einer offenen Küche – hier sind den Möglichkeiten keine Grenzen gesetzt. Das Grundstück bietet zudem genügend Platz für einen Garten, Terrassen oder Garagen.
Darüber hinaus überzeugt die Immobilie mit ihrer Lage in einer attraktiven Wohngegend, die eine gute Infrastruktur und eine gute Anbindung an öffentliche Verkehrsmittel bietet. Einkaufsmöglichkeiten, Schulen und Freizeiteinrichtungen sind in der Nähe vorhanden und bieten einen hohen Lebenskomfort. Dieses Baugrundstück ist somit eine einzigartige Gelegenheit für Bauherren, die ihren Wohntraum in einer angenehmen Umgebung verwirklichen möchten.
Lage
Der Bungalow befindet sich im Stadtrand von Hetzerath, einer ruhigen Ortslage in Deutschland. Hetzerath ist ein Stadtteil, der für seine grünen Wiesen und Felder bekannt ist. In der unmittelbaren Umgebung gibt es einige kleine Geschäfte und Restaurants, die den Bewohnern des Stadtteils das tägliche Leben erleichtern. Die Nachbarschaft ist familienfreundlich und bietet eine gute Anbindung an öffentliche Verkehrsmittel und Autobahnen.
Die Stadt, in der sich die Immobilie befindet, zeichnet sich durch ein historisches Stadtbild und eine gute Infrastruktur aus. Mit verschiedenen Einkaufsmöglichkeiten, Schulen und Freizeitangeboten bietet die Stadt alles, was man für ein angenehmes Leben braucht. Zudem gibt es viele Grünflächen und Parks, die zum Entspannen und Spazierengehen einladen. Die Stadt verfügt über eine gute Verkehrsanbindung und ist sowohl für Pendler als auch für Familien attraktiv.
Die Region, in der sich die Immobilie befindet, ist für ihre landschaftliche Vielfalt und ihre kulturellen Sehenswürdigkeiten bekannt. Hier kann man die Natur genießen, wandern gehen oder Ausflüge in die umliegenden Weinberge unternehmen. Die Region bietet zudem eine Vielzahl an Freizeitaktivitäten und Veranstaltungen für Jung und Alt. Insgesamt ist die Region ein beliebtes Ausflugsziel für Touristen und Einheimische gleichermaßen.
Ausstattung
Das Projekt umfasst Leistungen entsprechend der Bau- und Leistungsbeschreibung CONCEPT als Grundlage für die weitere Planung und Kalkulation. In definierten Ausbaustufen werden hier umfangreiche Leistungen dargestellt – übersichtlich und transparent. Treffen Sie Ihre ganz persönliche Wahl: vom Ausbauhaus über technikfertige oder fast fertige Ausstattung bis zum schlüsselfertigen Haus. Alles in bewährter RENSCH-HAUS Qualität:
Kostenfreie Bedarfsanalyse durch unsere qualifizierten Fachberater
Planungs- und Ingenieurleistungen (u.a. Statik, Nachweise für die Beantragung von Fördermitteln)
Ausstattungswelt mit großer Auswahl u.a. an Sanitärobjekten, Fliesen und Bodenbelägen von deutschen Markenherstellern
Produktion ausschließlich in Deutschland
Handwerkstradition aus Überzeugung – als Familienunternehmen seit über 145 Jahren in fünfter Generation
Lieferung und Montage (u.a. Transport, Kran, Gerüst, Baustellen-WC)
Effizienzhaus 40 – serienmäßig mit unserem Heiz- und Lüftungssystem (Frischluft-Wärmetechnik); eine Nachhaltigkeitszertifizierung nach QNG bieten wir Ihnen gerne an
Sommerlicher Hitzeschutz durch hohe Speicherfähigkeit der Konstruktion
Diffusionsoffene Außenwand, gefertigt aus natürlichen Rohstoffen
Gemeinsame Hausabnahme und Schlüsselübergabe zusammen mit unseren Bauherren
Alles aus einer Hand. Auf Wunsch mit Baunebengewerken (Keller, Fundamentplatte, Carport, Garage)
30 Jahre Garantie auf die Tragkonstruktion und fünf Jahre Gewährleistung mit kostenfreiem Kundendienst
Überzeugen Sie sich selbst. Sprechen Sie mit uns.
Sonstiges
°°° Die genaue Lage des Bauplatzes teilen wir ausschließlich nach einem persönlichen Gespräch und nach Vorlage einer Finanzierungszusicherung mit.
Der Baugrundverkauf ist an den Bau des Projekts gebunden und erfolgt provisionsfrei!°°°
Alle Daten zum dargestellten Baugrundstück beruhen auf Angaben des Eigentümers.
Angebot und Zwischenverkauf sind freibleibend.
Gerne stellen wir unseren Bauherren den Kontakt zum Anbieter her, oder sind bei der Bauplatzsuche behilflich.
Bei der Erstellung Ihres Hauses von RENSCH-HAUS stehen wir Ihnen als kompetenter Partner zur Seite. Vertrauen Sie dabei auf unsere Erfahrung und unseren Service, vom Keller bis zum Dach, gerne auf Wunsch auch inklusive zugehöriger Baunebengewerke, wie Garage, Carport, Kamin oder maßgenauer Küche. Und den Leistungsumfang? Den bestimmen Sie selbst: vom Ausbauhaus mit Muskelhypothek über technikfertige Leistungen bis hin zum schlüsselfertigen Haus.
Das Beste dabei: Sie haben nur einen Ansprechpartner und müssen nicht einzelnen Handwerkern hinterherlaufen. Mit einem Netzwerk langjähriger Partner decken wir zudem eine Vielzahl weiterer baurelevanter Leistungen, u. a. Finanzierung, Erstellung des Baugesuchs oder auch Baugrubenaushub, ab. Gerne informieren wir Sie über weitere Baugrundstücke aus unserem Portfolio.
Eine Weitergabe der Grundstücksdaten ohne konkretes Bauinteresse und Erstgespräch erfolgt nicht.
Wir bitten vorab die Finanzierungsmöglichkeiten zu prüfen.
Neugierig geworden? Wir freuen uns auf eine Nachricht von Ihnen.
IMMOFACTUM Immobilien
Agentur für Immobilien und nachhaltiges Bauen
RENSCH-HAUS Handelsvertretung Saarland / Trier / Eifel & Luxemburg
Büro Trier
Tel: 0176 / 96831288
Energieausweisangaben
- Enerigeausweistyp Bedarfsausweis
- Energieeffizienzklasse A+
Weitere Informationen
Rechtliches
provisionsfrei, aber an Hausbau mit RENSCH HAUS Trier gebunden
Herzlichen Dank für Ihre Anfrage.
Wir werden diese so schnell wie möglich bearbeiten.


